On the brooks

Description

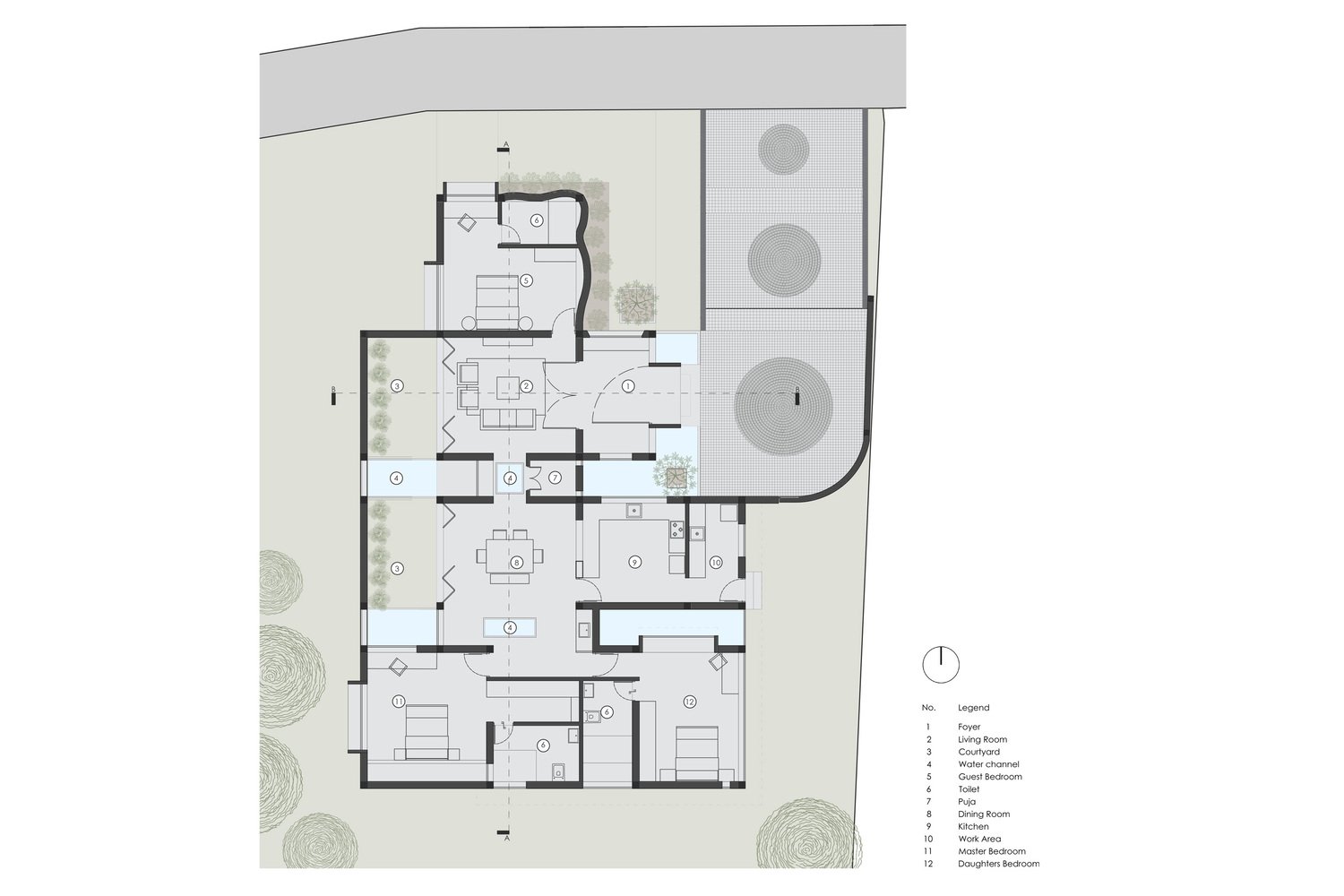
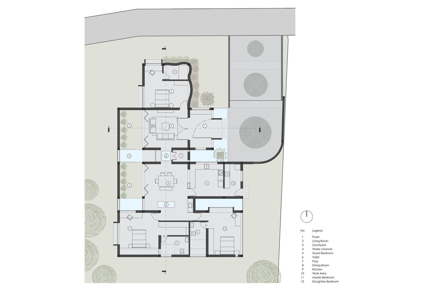
Built for Monsoon collective. This linear 3-bhk residence sits well into the serene setting of the site. One factor that was very well thought into was how to incorporate an element of water into the project, and this was achieved by bringing in two glass bridges in its interiors that would act as a natural outlet for water to flow from the front to the backyard of the house. Another key element of this residence is its apparent floating roof structure brought about by adding a through slit window below the concrete overhang. This also ensures continuous play with light and shadows in all the spaces. The openings have been positioned so as to capture the views to and from the exterior without compromising on privacy or security. The curved brick wall has been carefully worked out to break the monotony on the front facade, while also abiding by the vaastu of the site.

Project Details

Project Name
On the brooks
Architecture
Rafi Shakeer
Year
2023
Manufacturer
MC
Category
Designs
City
kochi
Country
India

Architectural Plans

Floor Plans